連載

 
スギダラ家奮闘記/第2回
文/写真 若杉浩一
ようやく着工へ……。しかし、そう簡単ではなかった!
 

 会社の承認を得て、いよいよ着工に向けた打ち合わせを進めた。スギダラ家の完成予想図は以前、スギダラ家の人々でも公開している通り、以下のようになっている。

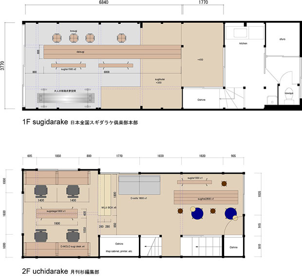
スギダラ家のレイアウト図。1階がスギダラギャラリー&ゲストルーム。
2階はスギダラ家管理事務所兼内田みえさんのサイレントオフィスギ。 通称ウチダラ家。

 まず、1階。ここは基本的に全国の杉をベースに、活動している仲間や同士、そして仲間の作品や活動の発表の場である。
 ギャラリー、交流の場、それに厨房まである。みんなで地鶏焼き、酒盛りができるようにしてある。大きなテーブルは杉プロジェクトをやるきっかけとなった「大杉」である。全長6mもある作品で、ON-HOT展という展示会のために南雲さんがデザインしたものだ。今は、南雲事務所に鎮座しているが、オフィスに入れるのにクレーンを使って搬入した。従って、出すのもクレーンである! 大変だが、またこのダイナミックな素材が別の顔に変わる。これがスギダラ・デザインの奥義である。このテーブルを囲んで皆で語らうことを考えている。その近くには杉の屋台「KATARI BAR」があり、「みえ鳥」がいる。天気の良い時は屋外に出して近隣の人々と語り合う。我々が随分忘れていた普通の語らいの場、交流の場である。ちなみにここで使う全ての杉材は宮崎県木材青壮年会連合会の方々が協力してくれることになっている。

 


スギダラ家完成予想模型。元々高さ40cmくらいの大杉がテーブルとして生まれ変わる予定。



 

KATARI BARは通常このスギダラ家に格納されている。必要に応じてどこにでも繰り出します

 
地鶏焼きをするための装備、みえ鳥も常備している。
煙対策は必須だ!


 2階はこの場にスギダラの皆さんがいつ来ていただいてもいいように、スギダラのママ、いや、お嬢様? 月刊杉WEB版編集長の内田みえさんがオフィスを構え、この場を面倒見てくれることになっている。企業の枠を超え、業種を超え、地域を越えて未来について語り合い、創造してゆく場ができるわけである。
 最も新しい集団、場、そして懐かしくごく当たり前の活動が加速する。まったく興奮する!

 この場の打ち合わせ、そして杉コレの協力のお礼のために、わざわざ宮崎から川上さんたち宮崎県木材青壮年会連合会の方々が内田洋行・向井社長に会いに来てくれた。ここからが、どんでん返しの始まりだった。向井社長が本気になり始めたのだった。
「あんな狭く汚い家屋でやるより、長い目で見て建て直そう」と言い出したのである。
「えっ! 社長、今のままでささやかに、本当のことを大それてやるから意味があるんです! 
考え直しましょう」。
……しかし、サイは既に振られてしまった。
 やはり、簡単には行かなかった。

つづく

●<わかすぎ・こういち>インハウス・プロダクトデザイナー
株式会社内田洋行 テクニカルデザインセンターに所属するが、 企業の枠や ジャンルの枠にこだわらない活動を行う。
日本全国スギダラケ倶楽部 本部デザイン部長
 

   
  Copyright(C) 2005 Gekkan sugi All Rights Reserved