![]() |
![]() |
|
|||||||||||||||||||||||||||||||||||||||||
| *第5回 「新しい水平構面をつくる・その1」はこちらへ | |||||||||||||||||||||||||||||||||||||||||
| 5.実験概要 | |||||||||||||||||||||||||||||||||||||||||
|
|||||||||||||||||||||||||||||||||||||||||
| 6.試験体概要 | |||||||||||||||||||||||||||||||||||||||||
| 本試験体は下記のように5体の仕様による。 | |||||||||||||||||||||||||||||||||||||||||
|
|||||||||||||||||||||||||||||||||||||||||
上記のとおり5体をそれぞれ構造特性を持ち合わせており、その特性を説明すると下記の通りである。 |
|||||||||||||||||||||||||||||||||||||||||
| ●桧(吉野産)厚板 せん断抵抗ダボ仕様 | |||||||||||||||||||||||||||||||||||||||||
| この仕様は、国産材(吉野産材)の桧板材による水平構面の構築であり、田原建築設計事務所が昨年度高度ポリテクセンター(千葉県幕張市)にて、行った「流しダボによる杉板水平構面の実験」の改良型であり、コスト的には杉よりもやや高いが、桧は材料強度も杉に対して高いため、コスト性能比も向上するものと考えられる。 | |||||||||||||||||||||||||||||||||||||||||
| ●米松(ドライビーム) 火打ち+合板転ばし根太仕様 | |||||||||||||||||||||||||||||||||||||||||
| この仕様は、一般的な木造2階建てにおける水平構面であり、特に多いと思われる。 このような転ばし根太と火打ちにおける性能は、「品確法」の表による床倍率で、約1.0倍程度の性能があるとされているが、大きな空間が必要となる床面や、偏芯率が0.3以上のバランスの悪い耐力壁の悪い住宅では、大地震時に危険となる場合がある。 |
|||||||||||||||||||||||||||||||||||||||||
| ●米松(ドライビーム) 合板直貼り(落とし込み根太)仕様 | |||||||||||||||||||||||||||||||||||||||||
| この落とし込み根太による合板直張り仕様は、「剛床」と呼ばれる水平構面であり、 木造3階建てにおいて規定されたといってよい仕様である。 現在のところ、この仕様の床倍率が一番剛性が高いとされ、「品確法」による床倍率は、約2倍以上とされている。 |
|||||||||||||||||||||||||||||||||||||||||
| ●杉(吉野産・高知県嶺北産)厚板 せん断抵抗ダボ仕様 | |||||||||||||||||||||||||||||||||||||||||
この仕様も、桧の仕様と同じであり、杉ということで材料強度も低いが、コストも安いので普及するであろうと思われる仕様で、地域によるばらつきがあるものか否かを調べる実験でもある。 |
|||||||||||||||||||||||||||||||||||||||||
| 以下に各試験体の図面を示す。 | |||||||||||||||||||||||||||||||||||||||||
| 試験体図 | *図面をクリックすると、もう少し大きなサイズのものが見られます。 | ||||||||||||||||||||||||||||||||||||||||
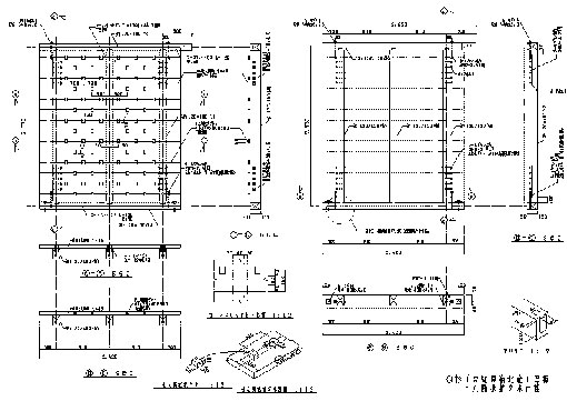
| 1.桧厚板せん断抵抗ダボ仕様 | |||||||||||||||||||||||||||||||||||||||||
![]() |
|||||||||||||||||||||||||||||||||||||||||
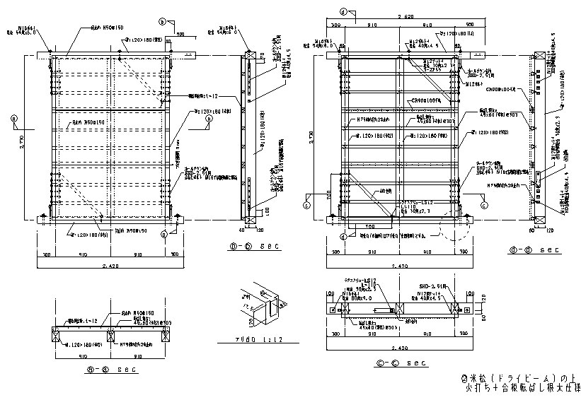
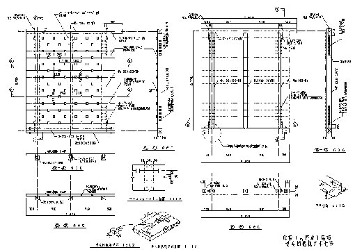
| 2.合板転ばし根太+火打ち仕様 | |||||||||||||||||||||||||||||||||||||||||
![]() |
|||||||||||||||||||||||||||||||||||||||||
| 3.杉「吉野産」厚板せん断抵抗ダボ仕様 | |||||||||||||||||||||||||||||||||||||||||
![]() |
|||||||||||||||||||||||||||||||||||||||||
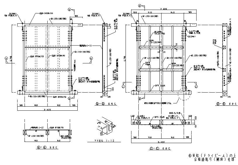
| 4.合板直貼り(剛床)仕様 | |||||||||||||||||||||||||||||||||||||||||
![]() |
|||||||||||||||||||||||||||||||||||||||||
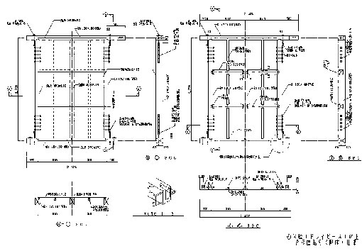
| 5.杉「高知産」厚板せん断抵抗ダボ仕様 | |||||||||||||||||||||||||||||||||||||||||
![]() |
|||||||||||||||||||||||||||||||||||||||||
| 次回は、試験前のチェック及び実験準備について解説をしたいと思う。 | |||||||||||||||||||||||||||||||||||||||||
| ●<たはら・まさる> 「木構造建築研究所 田原」主宰 http://www4.kcn.ne.jp/~taharakn |
|||||||||||||||||||||||||||||||||||||||||
Copyright(C)
2005 GEKKAN SUGI all rights reserved |
|||